


















Brasov - Cartier Izvor - Tarlungeni - casa individuala P+1 - beci de depozitare - constructie noua.
Imobilul este situat la intrare in cartierul Izvor, zona avand facilitati precum: mijloace de transport in comun, magazine, farmacie, gradinita privata.
Proprietatea dispune de un teren total de 400 mp si curtea este amenajata cu gazon si pomi fructiferi.
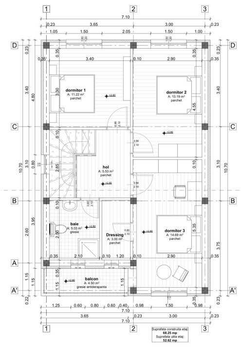
Casa are regim de inaltime P+M+pod, cu o suprafata utila interioara de 110 mp + terasa de 15 mp + beci de 13 mp, avand urmatoarea compartimentare:
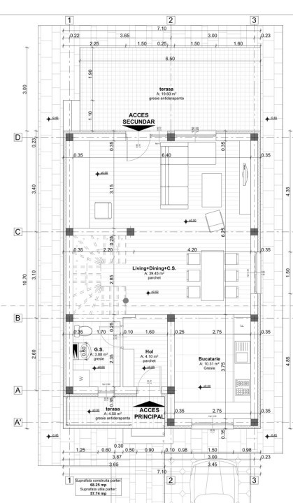
- parter: camera de zi, bucatarie, baie, hol si terasa;
- etaj: 3 dormitoare, baie, hol, dressing si balcon.
Casa se vinde la pretul afisat cu bucataria mobilata sau la 170.000 Euro nemobilata. Pentru varianta complet mobilata, pretul este diferit.
Imobilul este racordat la utilitati( electricitate, apa, gaz, fibra optica) si dispune de fosa septica ecologica.
Pentru spatiul de depozitare dispune de un beci de 13 mp.
Specificatii tehnice:
- incalzire in pardoseala pe parter( la etaj calorifere);
- constructie din zidarie portanta( caramida);
- termoizolatie exterioara cu polistiren de 10 cm.
Numele meu este Cristian si va stau la dispozitie pentru detalii suplimentare sau pentru programarea unei vizionari.