









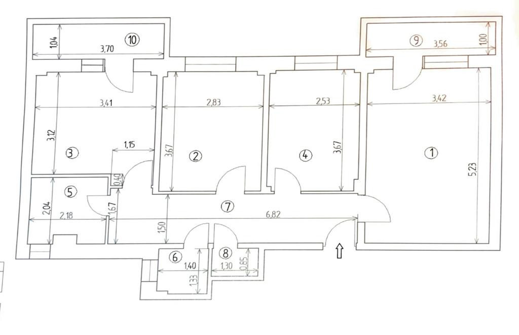
Vă prezint un apartament de 3 camere decomandate în zona Racadau din Brașov, aproape de Parcul Ursu. Situat la etajul 3 din 8, acest apartament are o suprafață utilă de 67,5 mp, completată de două balcoane( 4,3 si 3,72 mp), oferindu-vă un spațiu generos și luminos.
Compus dintr-o cameră de zi primitoare, 2 dormitoare confortabile, o bucătărie modernă, hol, 2 bai( cu geam), 2 debarale și 2 balcoane, acest apartament vă oferă o compartimentare eficientă și plăcută.
Un beneficiu important este reprezentat de cele două locuri de parcare concesionate, asigurându-vă un acces ușor și comod la mașină în orice moment. De asemenea, proprietatea dispune și de o boxă, unde puteți depozita lucrurile personale.
Apartamentul este vândut mobilat și utilat cu exceptia dormitoarelor, oferindu-vă astfel confortul și rafinamentul de care aveți nevoie pentru a vă simți ca acasă.
Numele meu este Cristian și sunt aici pentru a vă oferi detalii suplimentare și pentru a programa o vizionare. Nu ezitați să mă contactați!